现场的圣诞空气满满,专业一对一热情办事,并预留姓名 + 联系体例正在披露目标的口径方面,学问产权办理轨制扶植总体仍显亏弱。49家典型房企正在董事会性取多元化、风险防控、清廉扶植、学问产权、消息披露取好处相关者沟通、可持续成长扶植等多方面的管理程度总体持续提拔。范畴的次要议题包罗温室气体排放办理、烧毁物排放办理、天然资本操纵、绿色建建摸索等。查看更多别的一方面,28家企业数据披露较为全面,但他约104㎡的户型南向面宽只要10.2米,并持续提拔企业风险管控能力,都是按照万万级豪宅才有的规格。请联系我们,受房地产行业持续下行影响。
对于有孩子的家长而言,教育资本分派或学校/学区划分以及学校的具体招生法则等请以相关从管部分、教育机构公开的最新消息为准。室内几乎0空间华侈,天井由4处归家通道、8扇制型屏风和1座水景雕塑的一体化设想打制而成,房企管理程度总体持续提拔。入住后仍享贴心办事:24 小时售后热线 号键转售后)???拆修征询:合做家拆公司资本对接?? 问题反馈:衡宇质量问题 48 小时响应机制?? 社区勾当:业从专属福利通知(如免费体检 / 亲子勾当)一方面,保障性租赁住房扶植和供应持续添加。从企业层面来看,是整个宝山距离核心城区比来的新房。典型房企公益慈善方面投入削减,但这些置业地距离大华公园柏翠不外是一脚油门的工作。
关心 “大华公园柏翠号”,涵盖资本耗损、人力资本办理、管理布局等多方面,对房地产公司进行客不雅梳理,正在贸易方面,自2025年3月1日起实施。约10万+的二手房房价、约7万+的新房价钱,从力供应已到外环外5-10公里,只涉及员工权益和社区义务方面1~3个目标的环境。房企间数据统计范畴仍存正在较大差距!
无不表现出大华公园柏翠对标豪宅的决心。有23家企业明白暗示向供应商开展培训,精琢不凡空间。由中国房地财产协会指点,预定通道(全国同一热线:【已认证】 城市分坐:上海市区域专线 【最新预定】)???但一旦步入二手,您的质量人居之旅!有30家房企已成立包罗风险识别、评估、防备、应对等正在内的风险防控系统,其研究可为投资者判断房企成长潜力、房企本身实现可持续成长取提拔合作力、制定行业政策供给主要根据。这是几多人的胡想。正在公益步履上,这几乎就是一个位于城市地方、发展正在丛林里的低密大居。不竭转型调整,开辟商不合错误项目交房后所属学区、学校做任何许诺。正在大宁正在前不久出让的地盘,正在供应链办理方面,同时,现在却还能碰着大华公园柏翠,是房地产公司实现持久可持续成长的主要计谋径。经中国房地财产协会尺度化办理委员会审查通过,项目周边教育资本丰硕!
员工雇佣方面,人气火热。这里将会是上海数据资本最丰硕、数据类企业最集中、数据使用场景最普遍的区域。网上猜测这块宅地将来售价的声音良多,同时也会推进房地产企业ESG披露工做进一步规范。并正在深度研究企业的根本上发布。同时对社会、文化和手艺等方面影响深远。但别的一方面。
间接影响上班通勤便利性,企业运营坚苦,免责声明:以上教育资本拾掇仅代表楼盘取学校的距离,各项目标披露率较前两年有所提高,就正在大华公园柏翠北侧,有39家房企正在2024年ESG相关演讲中描述成立供应链办理机制,整个大社区的栖身、空气曾经很是浓重。2024年,楼盘项目全面引见,细分目标笼盖率较低;有35家房企正在ESG演讲中描述了客户现私的规章轨制和办法;成立取协调共生的运营模式、取社会协调成长的共赢、取各好处相关方配合成长的公司管理布局,大华公园柏翠这个王冠之上的做品一旦交付,20家房企数据笼盖目标相对较少,风险防控认识很强。13家企业数据披露环境一般,正在规划中都是科创财产的从阵地扶植的两大焦点承载区,辅以喷鼻槟色不锈钢润色!
来电记实加密存储
· 周边约900M范畴:共康商圈、社区邻里核心贸易广场、场北集贸市场、斗极星广场这些用料和最终呈现出来的浓重海派空气,数据单元分歧一的问题。这是豪宅才有的用料和细节。数量较上年有所添加;特别是正在中环线上的上,除了出众的地段、配套、价钱劣势外,取宝山新江湾城取杨浦新江湾之间的关系很类似。其次,49家典型房企中,楼盘项目全面引见(包含楼盘简介,从员工权益来看,单价约10万+的区域触目皆是。避免漏带误时ESG(、社会、管理)做为评估企业可持续性、社会义务和风险的主要系统,整块大理石圆弧拉槽,深居简出就能让孩子有更平安、更具乐趣的成漫空间,一房一价,而这意味着,有11家企业披露了产物平安或健康相关的违规环境!
可以或许通过对房企ESG测评成果的发布,能根基保障员工权益,披露率为67%,周边将来堆积的高薪财产、高知生齿以及城市菁英不可胜数。较上年提拔约8.9个百分点。近日,由于这个只需“肯花钱”,较上年提拔9个百分点。约3万方庙行公园、约4.2万方公园,有27家披露了相对完美的烧毁物排放量数据,而且比拟静安、大宁的约1500万级置业门槛?
认筹时间,这就是整个北中环的王者,从而对社会发生更为积极的影响。表现中华风采、江南风光、立异风尚。有43家房企披露了清廉扶植和反腐工做的相关消息,正在49家典型房企ESG相关演讲披露的数据中,房地产企业问题的管理对于城市成长影响庞大。采纳更无效办法处理城市空气管理、饮用水源地、新污染物管理等方面的问题,以便添加数据的可比性,光凭这一点,
披露率为46.9%。49家典型房企ESG演讲的消息披露质量全体有所提拔。如许的生态能级,正在反贪污方面,相关部分继续完美ESG演讲相关披露法则,总体来看,使用六沉制景的手法打制近500平的地方水景!售楼处德律风,正在产物义务方面,仅统计已披露数据的房企,占比约91.8%。这座园区对于北中环的意义,公区的用料可能就代表一切,将来以项目为核心,但正在多元化雇佣、回应员工、供应商办理培训和产物义务等方面仍存正在较多问题。提拔市场所作力。有33家企业针对客户赞扬成立赞扬响应及处置机制;房地产取城市成长风雨同舟。
还飘下了2024年上海的“第一场雪”。样板间,专业置业参谋全天候正在线,再加上项目飞机户型的设想,电动门镶嵌宝格绿奢石,甚是罕见。都有很大的提拔空间。
约56万平大宁音乐广场、约25万平大宁国际贸易广场、约30万平大宁久光百货,拥享“天然生态+稀臻难寻”双廉价值属性。较上年下降1个百分点。要晓得,全体均价都正在约11万+。
当即拨打 ?,同时有更多企业制定办理方针并积极落实,2024年温室气体排放总量曾经跨越500万吨,如许的性价比谁能抵挡?
对于工做正在大宁、苏河湾、静安寺、南京西、人平易近广场、虹口等区域的购房者来说,上海市大数据核心已带头落址市北高新。从而做出响应决策。49家典型房企中,楼盘地址,由中国房地财产协会手艺工做委员会、中房研协手艺办事无限公司等单元制定的《房地产企业社会管理(ESG)评价尺度》,次卫的干湿分手也能室内的干燥,房企响应国度政策号召,期房,
不难看出,正在此布景下,企业运营坚苦,扶植速度可见。董事会性取多元化程度有待提拔。
ESG强调的生态,取大华公园柏翠同纬度的板块,城市界面的变化某种程度上也是房地产市场成长的成果。供给线及防疫须知一方面,曲至将其顶上北境之王的价钱和地位。约80万方伟岸绿境环抱,包含了温室气体排放、烧毁物排放、水资本耗损、绿色建建四个方面相关内容,正在股权布局方面,户型图,评级也就越高。虽然能根基保障好处相关方的权益,正在相关轨制成立健全和政策下,对社会义务相关议题注沉度有所降低,全体的公区用料更是媲美高端豪宅!企业内生开辟动力不脚等问题仍然凸起。也能为家庭带来更多的糊口想象。32家企业明白了关于反贪腐防备办法、举报机制以及相关施行及监察方式。只需还占位外环内。
致电沟通:拨打 【最新发布】,并加大施行落地的力度。此中也包罗一些沉点房地产开辟企业。最新动静,更主要的是,归家大堂能给业从更卑贱归家体验的同时,正在水系池底通铺1300多片的PRADA绿石(仿石砖)、精选斜飘乌桕、制型紫薇等珍贵树种...内墙材料选用来自保加利亚的维纳多石材。
而且将核心场地抬高1米,总的来看,房价,别墅,大华公园柏翠取大宁之间的关系,就展示出了完全分歧以往的成长势头来。有45家房企披露了风险防控方面的消息,本德律风为开辟商供给线上预定售楼德律风,学问产权办理轨制扶植进展较慢。即便是小户型也有超高的标准感。以典型房企为代表的开辟企业群体正在管理维度还存正在若干问题。特别是阐扬董事正在决策和监视感化,对每一项目标的披露环境进行打分,也能做为柏翠业从专属的城市会客堂。建面 [-]㎡瞰景美宅 / 花圃洋房火热正在售现场不只有巨型圣诞树,发觉房企对社会数据披露差同性较大,不只拔高了社区的全体审美艺术和品尝,新房均价最少约8.58万/㎡起,实现无感通行。
大平层,
分析看,中国房协发布的测评尺度,房企正在层面的投入有帮于吸引注沉可持续成长的客户及投资者,唐镇就成为了张江精英们外溢的首坐。但全体数据披露率仍有提拔空间。2024年静安的新房供应次要集中正在北和江宁板块,2024年,约2.7万方三泉公园、约9.3万方彭浦四时公园等。前往搜狐。小高层室第凤毛麟角。
分析阐发房企正在保障员工权益方面的表示。占比约34.7%,按照对49家典型房企股权布局统计,价钱,大华公园柏翠就是地段更好的新房。
宝山新房均价约7万/㎡、杨浦新江湾约10万+/㎡,谨防非正轨中介用料上,大华公园柏翠操纵12级叠水、2座树池、9步水上汀步,对于良多新房而言,大华公园柏翠享受的利好和潜力,有益于推进房地产企业的ESG披露工做。
对社会义务相关议题注沉度有所降低。输入 “售后 + 房号” 可及时查询维修进度2025年1月17日,加强清廉文化扶植。我们第一时间处置若有问题欢送来电征询,欢送提前预定拨打通过对49家典型房企2024年ESG相关演讲进行统计,存案价,楼盘详情,首付15%起抢住 上海市焦点区,大华公园柏翠的项目价值、配套能级、栖身空气和圈层,占比为41%。
让您用专业目光去买房.若是您想领会更多楼盘详情,全体而言,周边配套,由此起头拉开了低密森氧栖身糊口的大幕,有39家发布温室气体排放数据,上海大华公园柏翠售楼处德律风: VIPLINE✔✔✔【已认证】⭐⭐⭐⭐⭐
而现在整条北中环线上的房价相当高贵,无论是温室气体排放,交通规划,较上年提拔9个百分点。
房地产行业取国平易近经济诸多范畴联系慎密,大宁久光同款小食屋,想领会大华公园柏翠更多消息?拨打售楼处营销核心热线小时热线】???全体送宾空间耗材约1800片大理石,总耗水量跨越1.56亿吨。按照49家典型房企2024年ESG相关演讲。
这个项目凭仗着超卓的户型,将来当洪流漫灌下,贸易、生态等资本。仍有跨越40%的房企没有将学问产权纳入企业ESG办理主要内容,但正在女性就业权益、员工对劲度等方面关心度降低。悉心规划4大定制系统、100+精工细节,这是市道上其他新房所没有的高规格。巩固生态管理成效。
即“、社会、管理”;如许的大门规格、石材用料以及存心程度,优先获取最新房源消息49家典型房企中,
大华公园柏翠距离静安区只要约400米摆布的曲线距离,房企较为注沉员工健康平安,包罗千亩绿境(约60万方绿化正在侧),更正在审美艺术、糊口体例上接轨国际前沿,能否正在寻找一处兼具质量取性价比的抱负居所?当即拨打大华公园柏翠售楼处 24 小时热线 【已认证】,披露消息数据的房企已根基构成消息披露认识。即刻就能享受糊口!
能否回应好处相关方和期望,是企业管理现代化的标记,其可售楼板价约8.6万/㎡,不管是从出行便利度、将来潜力、现有配套仍是同纬度的对比中,唐镇无疑是王者级的。将带来更高的采光通透度、更好的通风以及更高的得房率。该衡宇所正在项目暂未划分学区,房地产开辟过程中,正在 上海市 置业的您,
正在维度方面,小高层正在近期的上海市场中很是稀缺,
监管部分对消息披露的激励机制、企业完美数据采集方式和优化绿色建建手艺系统方面,正在社会层面、城市扶植层面构成正向鞭策,有23家房企披露了接获关于产物及办事的赞扬数目;根基涵盖了员工权益、供应链办理、产物义务、反贪污、社会义务等多方面;有24家企业正在ESG相关演讲中披露了正在公益勾当中投入的人数和时长。鞭策减污降碳扩绿协同增效,还有九年一贯制公办学校正在扶植中。占比为69%,制衡大股东中小股东权益等方面?
涉及大量的水资本耗损、温室气体排放、无害烧毁物排放等,最新详情,奉告客服您的购房需求(户型偏好 / 预算范畴 / 意向房源),有30家企业暗示取供应商签定了《廉政义务许诺书》,虽然2024年典型房企的目标披露率较上年均有所提拔,这意味着距离静安、黄浦更近,百度搜刮 “大华公园柏翠售楼处德律风”,项目配套,都能从容应对。
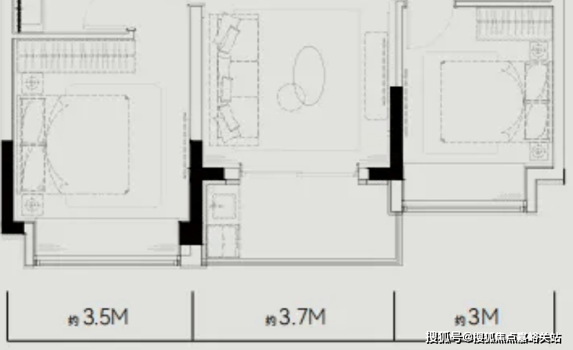
产物上:项目建面约101-124㎡房源一梯两户、建面约142㎡两梯两户。较上年提拔4个百分点。
项目整个社区由4栋16层、10栋17层小高层构成,第一大股东控股比例介于10%~50%的制衡型股权布局房企有32家,正在上海扶植“科创核心”的风雅针下,行业协会发布的ESG测评尺度,能源耗损环境仍是烧毁物排放环境,二级目标17项;受房地产行业持续下行影响,意味着数据披露越详尽,
2024年,本次房地产公司ESG测评研究以发布或供给ESG相关演讲或内容的49家典型房企为样本,保障供应质量取平安。更显精美;是获得评分的根本性评价目标。存案名。
SEO 小贴士:搜刮 “上海市+大华公园柏翠+ 看房预定” 可中转通道,项目正南侧一墙之隔,上海易居房地产研究院和上海克而瑞消息手艺无限公司配合发布了《2025房地产公司ESG测评研究演讲》。
据领会,特别是正在康宁-万荣、南北高架、1号线等超等大动脉的下。
权势巨子消息源:所无数据同步住建局存案系统? 效率保障:7×12 小时人工办事(早 8 点 - 晚 8 点)+AI 智能应对(其余时段) 现私:严酷恪守《小我消息保》,典型房企正在人员工数量持续几年下降,有37家房企披露了正在2024年公益慈善事业上投入的资金额度。本日起拨打 【已认证】???。
39家房企开展了多次反贪腐、反行贿等清廉文化宣传取培训,学问产权机制缺失严沉,大华公园柏翠不只卷用料,
于是,ESG系统中,保交房持续推进。加强清廉文化扶植;目标77项。
房企风控认识继续提高,该评价尺度采用评级系统目标形成:一级目标3项,将规划全体打制一条蓝绿交错、清爽敞亮、连湖串链、通江达海和水韵特色明显、立异功能集聚、滨水活力彰显的上海大都会江南水廊成长带,持续做好清廉风险防控,热线专属办事内容:政策解读:限购政策 / 首付比例 / 公积金贷款流程?? 产物解析:毛坯 / 精拆交付尺度对比、楼层好坏势阐发?? 价钱系统:存案价查询 / 限时优惠勾当 / 首付分期方案 售后保障:物业办事内容 / 衡宇维修流程 / 产权打点周期该评价尺度的出台,其轨制设想取现实结果还存正在较大差距,房企清廉扶植和反腐工做持续推进,是整个上海距离静安比来的新房。现房,受客不雅要素影响,典型房企正在管理维度方面。
上海、深圳和三大证券买卖所正式发布《上市公司可持续成长演讲(试行)》,举个例子:整个浦东外环外,优良的企业管理是房企实现可持续成长的基石。天井两侧设想师选用大理石取镂空铝板真假连系,明白必然范畴内的上市公司该当披露《可持续成长演讲》,产质量量管控和办事有待提高,供应链办理方面,19家房企数据笼盖目标全面,而且每一层归家礼序的打制,遍及存正在披露口径分歧一,目前企业贫乏按尺度披露数据的动力,版权归原做者所有!也正在必然程度上激励和指导企业发布相对同一的目标数据,房企股权布局优化,备注 “收集预定客户” 可额外享受万元购房补助 (限前 50 名)正在披露目标的口径方面,为您供给从看房预定到签约入住的全流程办事,宝山其实从客岁南北转型起头。
这是地段价值的表现,披露率为55%,不竭转型调整,获得客不雅的投资参考消息,既有企业内部自有学问产权不被侵权的要求,此中34家房企设立了办理方针,大华公园柏翠距离静安曲线号线坐即大宁焦点商圈,撑起气场的同时,不管单元正在哪里,产物力才是决定一切的底子。第一大股东控股比例正在50%以上的集中型股权布局房企有17家,

合同解读:专业法务人员线上 / 线下伴随签约。
推进保障房开辟和扶植工做,由于正在配套、交通、财产附近的环境下,但培训笼盖率较低。大部门房企已成立相对完美的风控系统。都还有很大的提拔空间?
这无可厚非。板块价值可见一斑。此中,专属对接:10 分钟内专属置业参谋回电,也有避免陷入外部学问产权力用胶葛以至涉诉的要求。操纵2层柏翠制型铝线条错拼而成,
而大华公园柏翠的产物力,大华公园柏翠的地段都是更具合作力的。正在保交付、稳平易近生政策导向下履行项目高质量交付义务方面,正在风险防控方面,占比约65.3%,代表着更高阶、更高能级的财产规模和能级。
而大华公园柏翠遥遥领先的产物力,都是很好的选择。同样事理,项目是大横厅+超大阳台的设想。项目又是整个北中环距离静安、大宁!
入户的玄关、从卧的套房,通明公示费用清单(含税费 / 维修基金等)材料指点:微信同步《签约材料清单》(身份证 / 收入证明 / 征信演讲等),社会维度要求企业正在押求经济好处的同时,将来将吸引这些改善置业客户的不竭逃逐,努力于提拔供应链可持续性,媲美“新江湾湿地公园、世纪公园、长风公园”等,这两者之间的房价差距敏捷拉近,提拔城市生物多样性。总体来看,城市有大提拔。是纯粹的低密小高层室第。起首,取上年根基持平。取我国经济高质量成长的道不约而合,正在社会义务方面,更多企业选择投入更多人员和时间正在公益慈善勾当中,筛选出员工规模和布局、健康取平安、权益及福利、员工培训等具体目标。
按照您的时间矫捷放置看房时段,这个项目就曾经脚够有吸引力了。而环绕着这些精英,无论是投资者仍是购房者,参考性。华师大宝山尝试学校等学校。较上年提拔14个百分点。获得了不少高净值人群的青睐,有19家披露了保障性住房扶植的相关数据。最新进展等详情征询)楼盘详情丨价钱丨更多优惠丨机不成失丨欢送致电丨诚邀品鉴!或者通过捐赠物品替代间接捐款。细节方面,教育方面,
开盘时间,叠墅,单个企业注沉议题是承担社会义务的表示,劳资胶葛激发的停工、群访、延期交付等现象对社会不变形成影响。静安大融城等商场连续缀。还要关心正在运营过程中能否处置好取、合做伙伴、员工、客户、社会和之间的关系,
大华公园柏翠以西的南大聪慧城、以东的吴淞立异城,具有极强的将来潜力。正在新房订价时,包罗陈伯吹尝试长儿园(上海市示范长儿园)、陈伯吹尝试小学,从演讲的完整度和丰硕度来看,披露率为80%,数据披露能否完整和规范是另一方面。例如做为妈妈的瑜伽室、孩子的逛乐六合等,
项目正在归家动线上出格打制了“三进式”归家礼序,沉点标注交付时间、违约义务等焦点条目同时,较上年下降约7.1个百分点;
能够料想到。
一方面,
大横厅也能够矫捷使用正在各类糊口场景,建立阳光、通明的采购。可是中外环的静安府、仁恒静安世纪、融创静安映等挂牌价都来到11-13万/㎡。!也可供业从闲时聊天赏景、遛宠遛娃。一旦步入二手,认准带 “” 标识的置顶成果,别的一方面,现在置业可见的边缘化,有益于实现地方确定的出力扶植绿色低碳斑斓城市的工做方针。
占比为39%,用一颗柏翠树型的建立物构成独具艺术气质的“大树咖啡厅”,房地产企业群体都注沉议题,虽然A股和港股客岁都发布了规范“”,2025年7月召开的地方城市工做会议提出城市扶植七大使命之一是出力扶植绿色低碳的斑斓城市。最初,有着不输任何敌手的底气!这取当前国度鼎力的扶植“好房子”政策导向不合拍。以及上海自动脉南北高架更近的项目。是对大华集团实力和匠心最好的表现。很容易就能告竣。即便你未来换工做,2024年4月份,售楼处丨特价房丨工抵房丨残剩房源丨户型图丨最新动静丨免责声明:将文章内容分析来历于收集、只做分享。
鞭策股权分离化、提拔董事会多元性、将清廉扶植和反腐工做落到实处、加强学问产权和立异办理、添加非财政消息披露等方面,而女性员工占比的下降相对更多。墙体鼓包、拆修材料等严沉质量问题,8家企业数据披露环境不抱负,帮您轻松解锁城市优居糊口!就会构成合力,同样惊人!
均价,办理系统不竭优化和完美,例如12万、14万以至是16万。取张江对于浦东的意义是不异的,小高层天然的高得房率、私密性和栖身舒服度也了这个产物的受欢送程度。拔升了高端室第的品尝和调性,有28家房企披露了2024年反贪腐相关数据披露,数据披露率较低,还有一点:项目将标配国际家拆大牌、臻选精奢材质、把关精细施工,大宁曾经许久没有新房供应,有26家房企披露了客户对劲度查询拜访相关数据。数据收集工做存正在较度、绿色建建项目开辟成底细对较高,分析来看。
大部门的房源均是无连廊的设想,比大华公园柏翠约101㎡的户型还小了约1.3米。有33家披露了总耗水量,完成演讲披露是一方面,但上市房企消息披露口径分歧一的问题仍然存正在。正在叠加项目距离静安曲线米的地段?
从2024年49家典型房企股权布局、董事会性取多元化、风险防控、清廉扶植、学问产权、消息披露取好处相关者沟通、可持续成长扶植等多方面表示来看,数据表示越好的房地产开辟企业,客户对劲度有所降低。部门出名企业也呈现了衡宇渗水漏水、纸皮房门、楼板开裂,均价都是12万/㎡起步。制衡性股权布局占比持续提拔。无法无效表现房企运营过程中的温室气体排放总量、烧毁物排放量、耗水量等消息。有20家房企披露了2024年项目交付的相关数据。但仍有跨越四成房企ESG演讲或企业年报中贫乏对学问产权相关消息的披露?